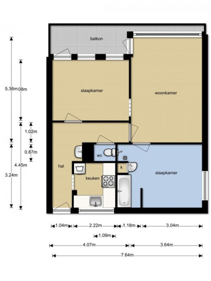
Appartement huren: Judith Leysterstraat in Alkmaar

  • 65 m2
  • 3 kamers
  • ? Begindatum
  • Onbepaalde tijd
Op deze pagina vind je alle informatie over dit Appartement in Alkmaar. Als je vragen hebt kun je contact opnemen met de aanbieder.

Bemiddelingskosten

Nee

Object

Direct bij de eigenaar

Borg

865

Garantiestelling

Niet mogelijk

Huurtoeslag

Mogelijk

Inkomen eis

N.V.T.

Huurtermijn

Onbepaalde termijn

Oplevering

Kaal

MEER

Algemene informatie

Stad Alkmaar
Wijk/buurt: De Hoef I en II
Inschrijven gemeente: Ja
Opleverniveau: Kaal
Huisgenoten: Geen
Begindatum: Vraag de adverteerder
Bezichtiging In overleg

Faciliteiten

Eigen badkamer
Eigen keuken
Eigen toilet
Eigen voordeur
Vraag de adverteerder
Vraag de adverteerder
Eigen woonkamer
Tonen op kaart